Komplett salgsoppgave

Østliveien 46

I en stille og rolig gate, grensende mot marka i øst har vi nå for salg en stor enebolig og en tomannsbolig tegnet av Shark

  • Totalpris 10 988 842 -
    14 026 342
  • Prisantydning 10 900 000 -
    13 900 000
  • Omkostninger 88 842 -
    126 342
  • BRA 172m2 - 189m2
  • Soverom 4
  • Bad 2
  • Byggeår 2024
  • Boligtype Enebolig og Tomannsbolig

Om boligen

I Østliveien på Greverud, har vi nå en tomannsbolig og en enebolig, tegnet av Shark Arkitekter for salg. Eiendommen ligger nydelig til i en stille, rolig gate med marka som nærmeste nabo i øst. Østliveien er en populær gate, med kort vei til Østli barneskole med nærmest bilfri gangvei, Greverud stasjon og flere barnehager. Kun en rusletur over til 18-hulls golfbane, idrettsanlegg og skianlegg om vinteren, samt lysløype. Gangavstand til Myrvoll og Greverud Torg med flere servicetilbud.

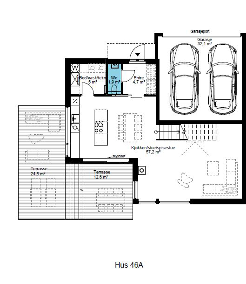
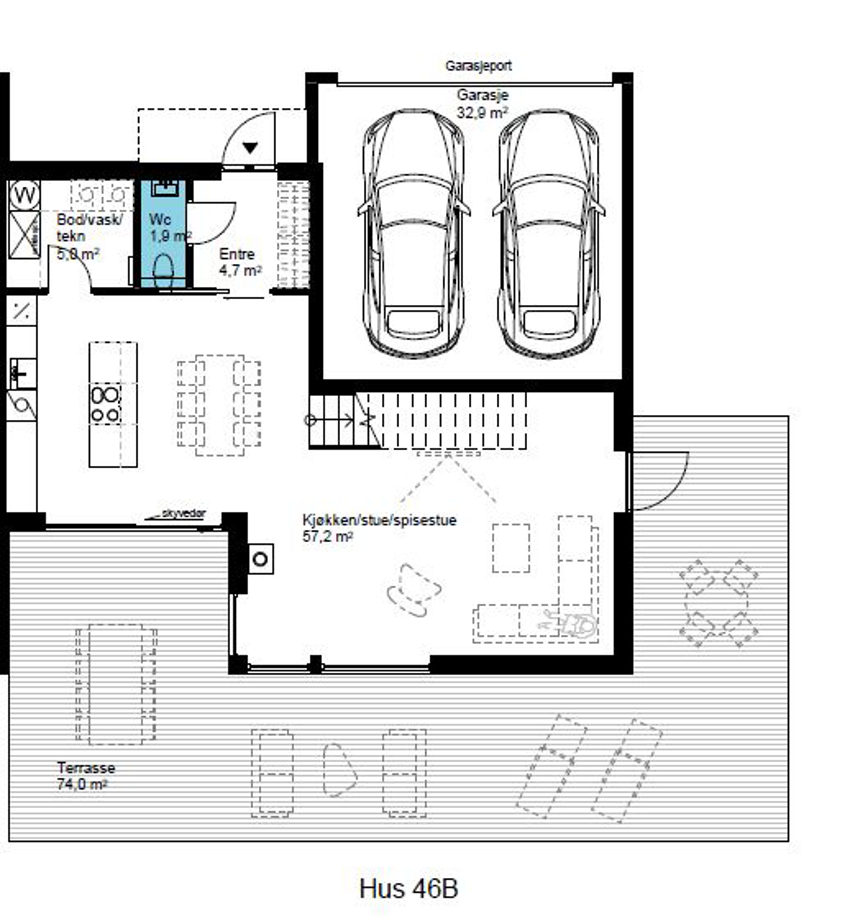
Tomannsboligen som prosjekteres blir på ca. 172 kvm BRA og vil inneholde 4 soverom, 2 baderom, gjestetoalett, bod/vaskerom/teknisk, kjøkken og stue i 1. etasje og stor tv-stue i 2. etasje. Eneboligen er er på ca. 189 kvm BRA og vil inneholde 4 soverom, 2 baderom, gjestetoalett, vaskerom/teknisk rom, kjøkken, stor stue i 1. etasje og stue i 2. etasje. I tillegg får tomannsboligen hver sin integrerte dobbelgarasje. Eneboligen får en frittstående dobbelgarasje. Det legges klart tomrør for montering av elbillader i carporten. Ladeboks kan bestilles som tilvalg, klart til innflytting.

Tomten leveres ferdig opparbeidet og innkjørsel/gårdsplass foran boligene blir asfaltert. Støttemur i støpt betong og trapper av granitt tilpasset terrenget. Det legges ferdig gress på horisontale flater og skråninger. Naturtomt mot friareal på østsiden forblir synlig fell/skjæring. Øvrig beplantning tilpasses på stedet.

Boligene holder en god og tidsriktig standard, med oppdaterte farger og materialvalg. Tilvalg og individuelle tilpasninger er mulig ved kjøp tidlig i byggefasen.

Boligene selges til fastpris og «første til mølla» prinsippet gjelder.

  • Beliggenhet

    Beliggenhet
    Boligen ligger i et etablert og populært boligområde, med marka rett øst. Umiddelbar nærhet til Østli skole samt gangavstand til flere barnehager og buss/tog.

    Kort vei til marka med flotte turmuligheter sommer som vinter. Gangavstand til turområde og 18-hulls golfbane på Greverud. Kort vei til Øst- og Sørmarka samt Nøstvedtmarka og Gjersjøen. Gode sykkelveier til Kolbotn, Gjersjøen og Tusenfryd.

    Området består av et meget variert og godt tilbud av forskjellige fritidstilbud. Alt fra et stort antall kunstgressbaner og idrettshaller, til slalåmbakke og tennisbaner. Bademuligheter på Hvervenbukta, Ingierstrand og Svartskog.

    Dagligvarehandelen kan gjøres blant annet på Kiwi Myrvoll. Meny Greverud eller Rema 1000 Greverud. For øvrig senter med alle servicetilbud i Kolbotn sentrum (5 minutter i bil) og Ski Storsenter (10-15 minutter i bil).

    Få minutters gange til Myrvoll eller Greverud stasjon med god togforbindelse mot syd og nord samt bussholdeplass. 22 minutter med tog (L2) til Oslo S. Ekspressbuss i rushtiden bruker 24 min til Oslo sentrum (Tollboden)- Enkel adkomst til E6 og E18. Ca. 20 minutter med bil Oslo sentrum.
    Adresse
    Østliveien 46 A/B/C - Vestre 1415 Oppegård
    Standard
    Boligene leveres nøkkelferdig og meget god "nybyggstandard" herunder;

    Kjøkkeninnredning fra HTH.
    Kjøkkenleverandør har utarbeidet egen kjøkkentegning tilhørende den enkelte bolig. Integrerte hvitevarer bestående av oppvaskmaskin, kjøl/frys-kombinasjon, stekeovn plassert i høyskap og induksjonstopp med integrert ventilator. Stor, praktisk kjøkkenøy.

    Baderomsinnredninger med heldekkende vask, to skuffer og speil med belysning fra Alterna. Innredning på toalettrom har bredde 55cm, på baderommene 80cm bredde. Toaletter er vegghengt. Dusjvegger i klart glass. Dusjnisjer blir nedsenket

    GULV:
    Alle rom med unntak av våtrom og entre/gang leveres med en-stavs eikegulv som standard. Det legges fliser i entre. Gulvene på baderom blir belagt med våtromsflis. Mosaikkfliser i nedsenket dusjnisje.

    VEGGER:
    Innvendige vegger i alle oppholdsrom utføres med gips som sparkles og males. Vegger på badene flislegges med 60x60 cm flis helt opp til himling. På vaskerom og toalettrom på plan 1 leveres malte gipsvegger med oppkantflis mot gulv.

    HIMLINGER:
    Himlinger leveres som sparklet og malt gips. Rørføringer vil i all hovedsak bli skjult bak innkassinger og som helt eller delvis nedforede gipshimlinger, fortrinnsvis i entré, våtrom og over kjøkkenskap.
    Utstyr
    - Det leveres seriekoblede røykvarslere.
    - 6 kg pulverapparat i hver bolig.
    - Det monteres frostfri tappekran utenfor vaskerommet.
    - Trådløs ringeklokke.
    - Det leveres postkasse til hver boenhet.
    - Det er avsatt plass til garderobeskap som
    kan bestilles via leverandør for skreddersøm
    Bebyggelsen
    Boligene oppføres med støpt plate på mark. Yttervegger utføres med isolert bindingsverk med ferdig grunnet og behandlet trekledning. Etasjeskillene etableres med isolert trebjelkelag. Utvending tekking med takpapp.

    Innvendige vegger utføres i bindingsverk av tre, isoleres og kles med gipsplater. Lyd- og brannkrav mot annen enhet og garasje iht. forskriftskrav.

    Innvendige dører leveres som hvite kompaktdører. Dørvridere i børstet stål. Karm med dempelist. Hovedinngangsdør med vindusfelt i glass leveres i samme farge som vindusinnramming. Døren leveres med FG-godkjent sylinderlås. Alle vinduer, samt heve-/skyvedør leveres fra ferdig malte trekarmer fra fabrikk.

    Det leveres trapp med vanger, trinn og repos i eik. Rekkverk mot stue i tomannsboligene leveres med glass som illustrert på perspektiver. Returgelender med 16mm stålsprosser.
    Oppvarming/teknisk
    Det leveres elektriske gulvvarme med termostat i våtrom, entre, kjøkken og stue. På soverommene leveres panelovner. Boligen leveres med stålpipe, og peisovn i stue. Piperør blir synlig i plan 2.

    Det medtas balansert ventilasjonsanlegg med varmegjenvinner. Ventilasjonsaggregat monteres i vaskerom/teknisk rom.  

    Elektrisk anlegg iht. NEK400. Legges generelt skjult i boligen, bortsett fra enkelte fremføringer på lyd/brannvegg mot nabo, i underordnede rom som garasje og bod, samt til lys og stikk under overskap på kjøkken. Det leveres downlights i entre, baderom. I kjøkken/spisestue og stue leveres spotskinner. I øvrige rom er det takpunkt med ferdig installert LED-lampe.

    Boligene leveres med klargjort med tv- og bredbåndsignaler fra Viken Fiber. Det blir 2 stk kablede uttak i hver bolig.
  • Offentlige forhold

    Vei, vann og avløp
    Boligene vil få adkomst fra offentlig vei og være tilknyttet offentlig vann og avløp.
    Reguleringsplan
    Eiendommen er regulert til boligbebyggelse. Området for øvrig er regulert til frittliggende småhusbebyggelse.
  • Økonomiske forhold

    Formuesverdi
    Verdien ved skattefastsetting er p.t. ikke fastsatt.

    Verdien ved skattefastsetting fastsettes av Ligningskontoret etter beregningsmodell som tar hensyn til om boligen er en såkalt "primærbolig" (der boligeieren er folkeregistrert bosatt) eller "sekundærbolig" (alle boliger man eier, men ikke bor fast i). Interessenter oppfordres til å sjekke www.skatteetaten.no eller kontakte ansvarlig megler for nærmere informasjon om verdien ved skattefastsetting.

    Ligningsverdien vil normalt være på ca. 25 -30 % av førstegangs kjøpesum. For øvrig gjøres det oppmerksom på nye regler for fastsettelse av verdien der kjøper selv må sende opplysninger om adresse, areal, boligtype og byggeår til skattemyndighetene.
    Forsikring
    Eiendommen holdes forsikret av selger frem til overtagelse.
    Kommunale avgifter
    Kommunale avgifter fastsettes etter at boligene er ferdigstilt og blir fakturert eier.
    Oppgjør
    5% av kjøpesummen innbetales ved kontraktsinngåelse, dog tidligst når det foreligger garanti etter Bustadoppføringslova § 12. Resterende del av kjøpesum samt omkostninger innbetales pr. overtakelsesdato.

    Ved eventuell forsinket betaling gjelder lov om forsinkelsesrenter av 17.12.1976 nr. 100.
  • Annet

    Arealangivelser i salgsoppgaven
    Arealberegningene er foretatt av arkitekt/utbygger og er oppmålt etter tegninger. Rom defineres etter forutsetningen som er lagt til grunn påtegningene. Arealene er å betrakte som omtrentlige ca. areal hvor avvik kan forekomme på sluttproduktet.
    Andre opplysninger
    INNBYTTEGARANTI:
    Dersom du kjøper bolig av Bolig & Eiendomsutvikling AS (BEU) kan BEU gi deg en innbyttegaranti på din nåværende bolig. Sagt i klartekst betyr det at dersom du ikke har solgt boligen din før du skal overta boligen du har kjøpt av BEU, kjøper BEU din nåværende bolig, til avtalt pris.

    Før du kjøper bolig av BEU kan du be om en skriftlig bindende innbyttegaranti på din nåværende bolig, som bekrefter hvilken sum du er garantert å få i innbytte dersom du selv ikke har solgt før du overtar ny bolig av Bolig & Eiendomsutvikling AS.

    Det eneste du forplikter deg til er, i samarbeid med BEU og eiendomsmegler, og aktivt forsøke selge nåværende bolig i markedet på vanlig måte. Skulle du derimot ikke lykkes med det, kan du med innbyttegarantien i hånd lene deg trygt tilbake, bekymringsløst overta din nye bolig og overlate din gamle bolig til BEU!

    BEU kan eiendom, og kan derfor spare deg for den usikkerheten det er å manøvrere i ukjent farvann, benytt deg av BEU sin innbyttegaranti!

    Kjøpers undersøkelsesplikt:
    Kjøper har selv ansvaret for å gjøre seg kjent med salgsprospekt, reguleringsplaner, leveransebeskrivelse og annen dokumentasjon som kjøper har fått tilgang til. Kjøper har ingen rett til å reklamere på grunnlag av forhold som kjøper er blitt gjort oppmerksom på, eller som kjøper på tross av oppfordring har unnlatt å sette seg inn i. Kjøper oppfordres til å ta kontakt med megler før avtale om kjøp av bolig inngås.

    Informasjon til salgsoppgaven:
    Salgsoppgaven er utarbeidet på grunnlag av opplysninger mottatt fra det offentlige, selger og selgers leverandører. All informasjon er godkjent av selger.

    Selger og megler tar forbehold om trykkfeil i prospekt og prisliste.

    Forbehold fra utbygger:
    Det tas forbehold om endelig byggetillatelse (dette forventes å komme innen kort tid).
    Denne beskrivelsen er utarbeidet for å orientere om bygningenes viktigste bestanddeler og funksjoner. Det kan forekomme avvik mellom byggebeskrivelsen og plantegningene. I slike tilfeller er det alltid denne byggebeskrivelsen som er retningsgivende. Utbygger har rett til å foreta endringer basert på offentlige krav som blir pålagt.

    Enkelte illustrasjoner i tegningsmaterialet kan vise forhold som ikke er i samsvar med leveranse, så som møblering, kjøkkenløsning, hvitevarer, peis, garderobeløsninger, fargevalg, tepper, dør- og vindusform, bygningsmessige detaljer, f.eks. fasadedetaljer, detaljer utvendig, materialvalg, blomsterkasser, beplantning etc. Det presiseres spesielt at kjøkken leveres iht. egen kjøkkentegning. Sjakter, kanalføringer, innkassinger og VVS-føringer er i hovedsak inntegnet, men det tas forbehold om justeringer i forbindelse med detaljprosjektering.  Det tas forbehold om måltaking av vegger i prospektets planer, da det er de ferdig prosjekterte detaljerte arbeidstegninger det bygges etter.
    Budgivning
    Selger er profesjonell og kravet om budfrist til kl. 12 etter siste annonserte visning gjelder ikke. Selger vil ta stilling til bud fortløpende.

    Alle bud skal inngis skriftlig til megler. Benytt "Gi bud"-knappen på våre annonser for å registrere ditt bud elektronisk. Dette er en enkel og sikker løsning som lar deg signere budet elektronisk ved hjelp av BankID.
    Overtagelse
    Estimert 2. kvartal 2024.
    Lovgivning
    Avtaleforholdet er underlagt bestemmelsene i lov av 13. juni 1997 nr. 43 om avtaler med forbruker om oppføring av ny bustad (bustadoppføringslova). Bustadoppføringslova bruker betegnelsen entreprenør og forbrukeren, mens her brukes uttrykkene selger og kjøper om de samme betegnelsene. Bustadoppføringslova § 3 sikrer kjøper rettigheter som ikke kan innskrenkes i kjøpekontrakten.

    Kjøper skal ikke betale inn noen del av kjøpesummen før § 12 garanti er stillet. Det forutsettes at skjøtet tinglyses på nye eier. Interessenter og kjøper må godta at selger og megler bruker elektronisk kommunikasjon i salgsprosessen.
    Lov om hvitvasking
    I henhold til lov om hvitvasking og terrorfinansiering har megler plikt til å gjennomføre kontrolltiltak ovenfor kunder. Dette innebærer å bekrefte kunders identitet på bakgrunn av fremvist gyldig legitimasjon. Videre innebærer det å få bekreftet identiteten til eventuelle reelle rettighetshavere, og å innhente opplysninger om kundeforholdets formål. Kjøpers innbetaling skal foretas fra norsk bank/finansinstitusjon. Selgers oppgjør vil skje til konto i norsk bank/finansinstitusjon. Dersom megler får mistanke om brudd på hvitvaskingsreglementet i forbindelse med en eiendomshandel, og han ikke klarer å få avkreftet denne mistanke, har han plikt til å rapportere dette til Økokrim. Melding sendes Økokrim uten at partene varsles. Megler kan i enkelte tilfeller også ha plikt til å stanse gjennomføring av handelen.
    Nord Eiendomsmegling AS fraskriver oss ansvar for eventuelle økonomiske krav som følge av ovennevnte forhold.
Bent André Norderhaug
Bent André Norderhaug
Eiendomsmegler MNEF
bent.norderhaug@nord-em.no 91 51 48 22
Ola Presterud
Ola Presterud
Eiendomsmegler MNEF
ola.presterud@nord-em.no 92 25 92 10
Østliveien 46 A
Østliveien 46 B
Østliveien 46 C